麓山楓林染秋色,千嬌百媚思緒鬧。
化作落葉當風舞,沐浴霜寒竟自由。
楓的顏色,如團團燃燒的火焰,凝聚著激情,升騰著自信。
期待著,從這份浪漫中追尋美好,憧憬著,在驚嘆的目光中閃爍輝煌。
飽蘸楓的顏色,濃縮忠誠,堅韌,樂觀與執著,滿懷豪情去渲染生命的絢麗畫卷。
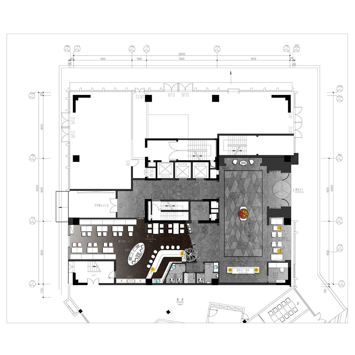
本案以麓山楓葉為主題設計元素,從楓葉型與色做為整個空間主旋律,一直延伸到空間的每個角落,傳達了年輕人生活的熱情與活力。也為空間設計拓展了更多創新點。









麓山楓林染秋色,千嬌百媚思緒鬧。
化作落葉當風舞,沐浴霜寒竟自由。
楓的顏色,如團團燃燒的火焰,凝聚著激情,升騰著自信。
期待著,從這份浪漫中追尋美好,憧憬著,在驚嘆的目光中閃爍輝煌。
飽蘸楓的顏色,濃縮忠誠,堅韌,樂觀與執著,滿懷豪情去渲染生命的絢麗畫卷。
本案以麓山楓葉為主題設計元素,從楓葉型與色做為整個空間主旋律,一直延伸到空間的每個角落,傳達了年輕人生活的熱情與活力。也為空間設計拓展了更多創新點。









麓山楓林染秋色,千嬌百媚思緒鬧。
化作落葉當風舞,沐浴霜寒竟自由。
楓的顏色,如團團燃燒的火焰,凝聚著激情,升騰著自信。
期待著,從這份浪漫中追尋美好,憧憬著,在驚嘆的目光中閃爍輝煌。
飽蘸楓的顏色,濃縮忠誠,堅韌,樂觀與執著,滿懷豪情去渲染生命的絢麗畫卷。
本案以麓山楓葉為主題設計元素,從楓葉型與色做為整個空間主旋律,一直延伸到空間的每個角落,傳達了年輕人生活的熱情與活力。也為空間設計拓展了更多創新點。









深圳市福田保稅區市花路1號金融科技創新中心A座15樓
159-7424-2408 137-1455-1726
xs@xiaodesign.com